Instalatorze, możesz zamówić kotły Vaillant ecoTEC pro za punkty PIK!
 

TECEprofil - stelaż montażowy pod zlewozmywaki i umywalki ze ścianką tylną do zabudowy suchej

Kod IK

J19310002

Kod EAN

4027255005341

Kod producenta

9310002

Marka

TECE

Model

profil

Cena katalogowa netto

730,58 zł / szt.

Cena katalogowa brutto

898,61 zł / szt.

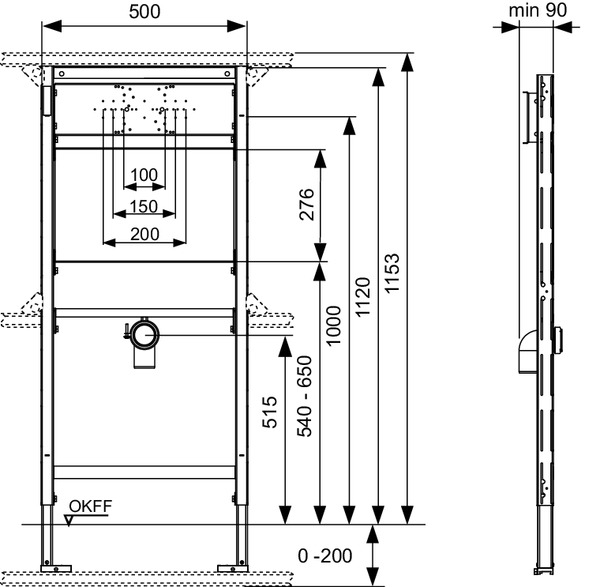
TECEprofil stelaż pod zlewozmywaki i umywalki ze ścianką tylną, wysokość montażowa 1120 mm
Do mocowania na kształtownikach stalowych TECEprofil lub do montażu w ścianach z profili metalowych lub drewnianych oraz jako ścianka przednia lub moduł narożnikowy.
Kompletnie zmontowana jednostka, składająca się z:
Samonośnej ramy montażowej, malowanej proszkowo
Wodoszczelnej, wielokrotnie klejonej płyty fornirowej zgodnej z normą DIN 68705
Trawersu montażowego do mocowania armatury natynkowej
Łuku przyłączeniowego do kanalizacji DN 50 odpornego na wysokie temperatury wraz zatyczką ochronną