Kupuj, montuj i zgarniaj punkty! Sprawdź aktualne akcje w Programie PIK!
 

TECEprofil - stelaż montażowy pod umywalkę

Kod IK

J19310000

Kod EAN

4027255005327

Kod producenta

9310000

Marka

TECE

Model

profil

Cena katalogowa netto

584,81 zł / szt.

Cena katalogowa brutto

719,32 zł / szt.

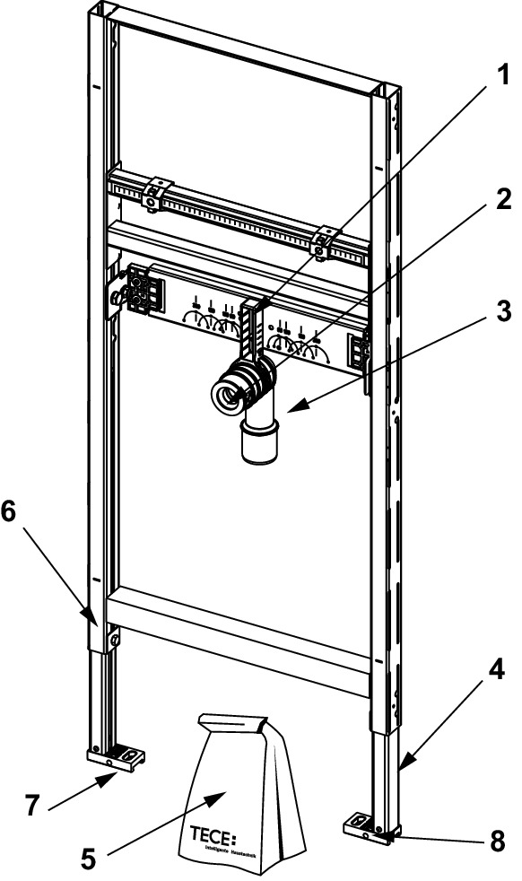
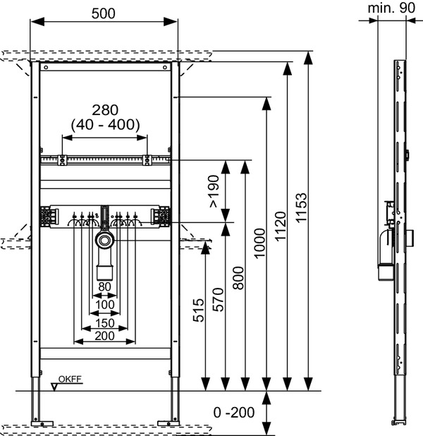
TECEprofil stelaż pod umywalkę, wysokość montażowa 1120 mm
Do mocowania na kształtownikach stalowych TECEprofil lub do montażu w ścianach z profili metalowych lub drewnianych oraz jako ścianka przednia lub moduł narożnikowy.
Kompletnie zmontowana jednostka, składająca się z:
Samonośnej ramy montażowej, malowanej proszkowo
Dwóch szpilek montażowych M 10, wskaźnika rozstawu z regulacją pionową i poziomą
Dźwiękoszczelnego trawersu montażowego do mocowania kolan naściennych
Łuku przyłączeniowego do kanalizacji DN 40/50 z redukcją gumową NW 30/50 (która jest jednocześnie uszczelką), zatyczki ochronnej