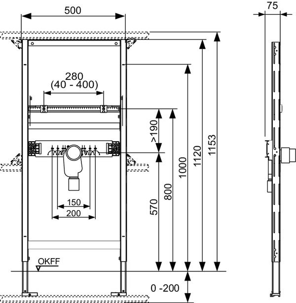
TECEprofil - stelaż montażowy pod umywalkę z syfonem podtynkowym
Do mocowania na kształtownikach stalowych TECEprofil lub do montażu w ścianach z profili metalowych lub drewnianych oraz jako ścianka przednia lub moduł narożnikowy.
Do montażu umywalek podbudowanych zgodnie z normą DIN 18040 - 1 (budownictwo bez barier - część 1: dostępne publiczne budynki i miejsca pracy).
Kompletnie zmontowana jednostka, składająca się z:
Samonośnej ramy montażowej, malowanej proszkowo
Dwóch szpilek montażowych M 10, wskaźnika rozstawu z regulacją pionową i poziomą
Dźwiękoszczelnego trawersu montażowego do mocowania kolan naściennych w rozstawie 150 mm i 200 mm
Syfonu podtynkowego DN 50 z wyciąganym wkładem, średnica nominalna DN 30 wraz z zatyczką ochronną








