Instalatorze, możesz zamówić kotły Vaillant ecoTEC pro za punkty PIK!
 

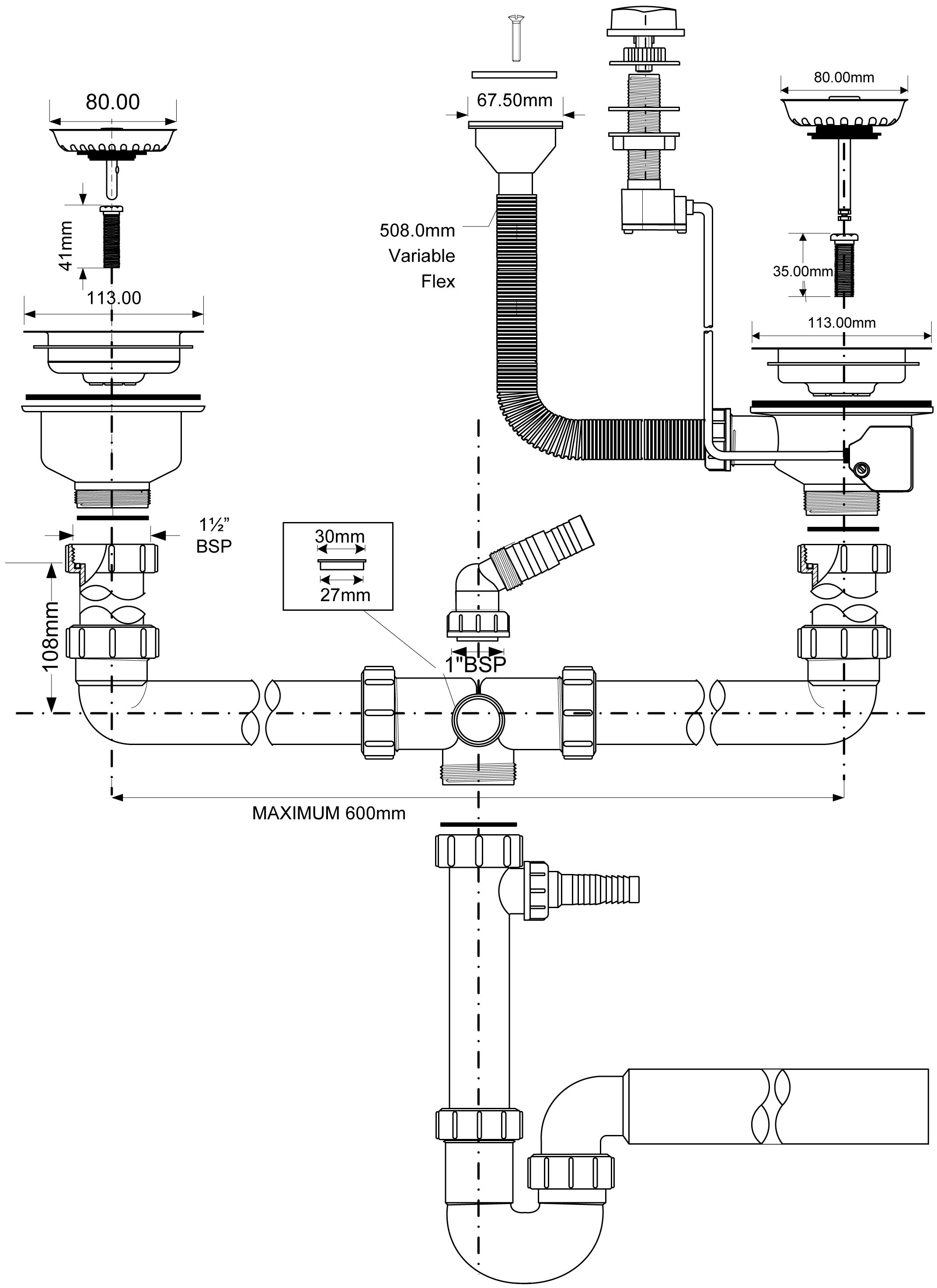
Syfon zlew.rurowy podwójny 3,5"X50mm z podłą.pralki lub zmywarki,spust z mech.automatycznym

Kod IK

CEHC7HC12DR-POL2

Kod EAN

5036484063038

Kod producenta

HC7HC12DR-POL2

Marka

MCALPINE

Model

Brak modelu

Cena katalogowa netto

219,04 zł / szt.

Cena katalogowa brutto

269,42 zł / szt.

Syfon zlewozmywakowy rurowy podwójny 11/2"x50mm z podłączeniem do pralki i zmywarki, ze spustami 113mm z korkiem automatycznym i przelewem z ujsciem prostokątnym-horyzontalnym do ociekacza.

Dane logistyczne

Opakowanie zbiorcze 1

Jednostka zbiorcza opak.

opak

Ilość

16

Masa brutto [kg]

22,52

Długość [m]

0,48

Szerokość [m]

0,58

Wysokość [m]

0,58