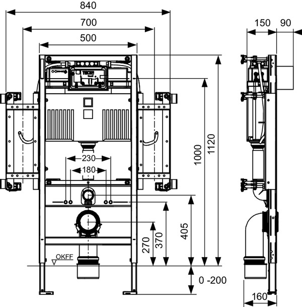
Stelaż podtynkowy do WC TECE profil dla niepełnosprawnych, 1120 x 840 x 160 mm, regulowana wysokość, ze spłuczką
Moduł WC z instalacją przycisków spłukujących „easy fit”. Do mocowania na kształtownikach TECEprofil lub w ściankach UA podtynkowych lub przed ścianą murowaną. Do budownictwa bez barier z podwyższonym mocowaniem ceramiki. Moduł z bocznymi ramami stalowymi i przewodami instalacyjnymi do prowadzenia kabla, łącznie z materiałem mocującym.
Wysokość uchwytu składanego = 760 mm
Spłuczka Uni uruchamiana z przodu:
- bezpieczny zbiornik z tworzywa odpornego na uderzanie, przetestowany zgodnie z normą EN 14055
- kompletnie zmontowana i zaplombowana spłuczka
- przyłącze spłuczki z gwintem zewnętrznym R 1/2", kompatybilne z adapterami szybkiego montażu
- pojemność zbiornika 10 litrów; standardowe ustawienie ilości spłukiwanej wody 6 litrów, opcjonalnie możliwość ustawienia ilości spłukiwanej wody 4,5/7,5/9 litrów; w systemie spłukiwania dwoma ilościami wody możliwość spłukiwania 3 litrami; pozostała ilość wody do natychmiastowego spłukiwania czyszczącego
- izolacja przeciw skraplaniu wody
- do przycisków spłukujących TECE i elektroniki WC
- możliwość zastosowania spłuczki do spłukiwania pojedyńczego lub dwoma ilościami wody
- instalacja przycisków spłukujących „easy fit”
- cichy zawór napełniający, grupa akustyczna 1 zgodnie z normą DIN 4109
- regulacja ciśnienia wody spłukującej bez konieczności demontażu zaworu spustowego
Rama stelaża:
- samonośna, malowana proszkowo
- dwie regulowane nóżki do montażu podłogowego w zakresie regulacji 0-200 mm
- dwie szpilki mocujące i nakrętki M 12
- cztery komplety mocowań stelaża z regulacją głębokości
- cztery multizaciski do mocowania w ściance TECEprofil
- boczne ramy stalowe do mocowania wybranych trawersów
- kolano odpływowe do WC DN 90 z adapterem przyłączeniowym DN 90/100, wykonane z PP
- adapter przyłączeniowy odpowiedni także do montażu poziomego
- kpl. kroćców przyłączeniowych L - 300 mm wraz z zatyczkami, do montażu ceramiki
Należy zamawiać oddzielnie:
- zestaw płyt stalowych/drewnianych do mocowania uchwytów składanych wybranych producentów (wg producenta i nazwy serii)
- elektronikę do WC (na przykład elektroniczny mechanizm spłukujący TECEplanus lub elektronika do WC TECEsolid)
- manualny przycisk spłukujący do WC (patrz przyciski spłukujące)
- TECE zestaw montażowy do ceramiki myjącej w zabudowie suchej
Uwaga:
W przypadku stosowania ceramiki WC o zmniejszonej powierzchni stykowej (= odstęp między bolcem mocującym a dolną krawędzią powierzchni stykowej nie większy niż 18 cm) - np.: V & B Memento, Subway 2.0 – konieczny jest montaż stalowych podpór nr kat. 9041029 w dolnej części zabudowy.
Ukryte prowadzenie okablowania nie jest możliwe w przypadku niektórych uchwytów składanych.
Dane techniczne
Głębokość [mm]
160
Regulowana wysokość
Tak
Szerokość [mm]
840
Wysokość [mm]
1120
Dane logistyczne
Opakowanie zbiorcze 2
Długość [m]
1,16
Szerokość [m]
0,51
Wysokość [m]
0,156








