PROSYS RAMA UMYWALKOWA, BATERIA ŚCIENNA
Lepsze pod każdym względem
Produkty ProSys™ to komplet rozwiązań instalacyjnych do łazienki, przeznaczonych do toalet, bidetów, umywalek, pisuarów i pryszniców.
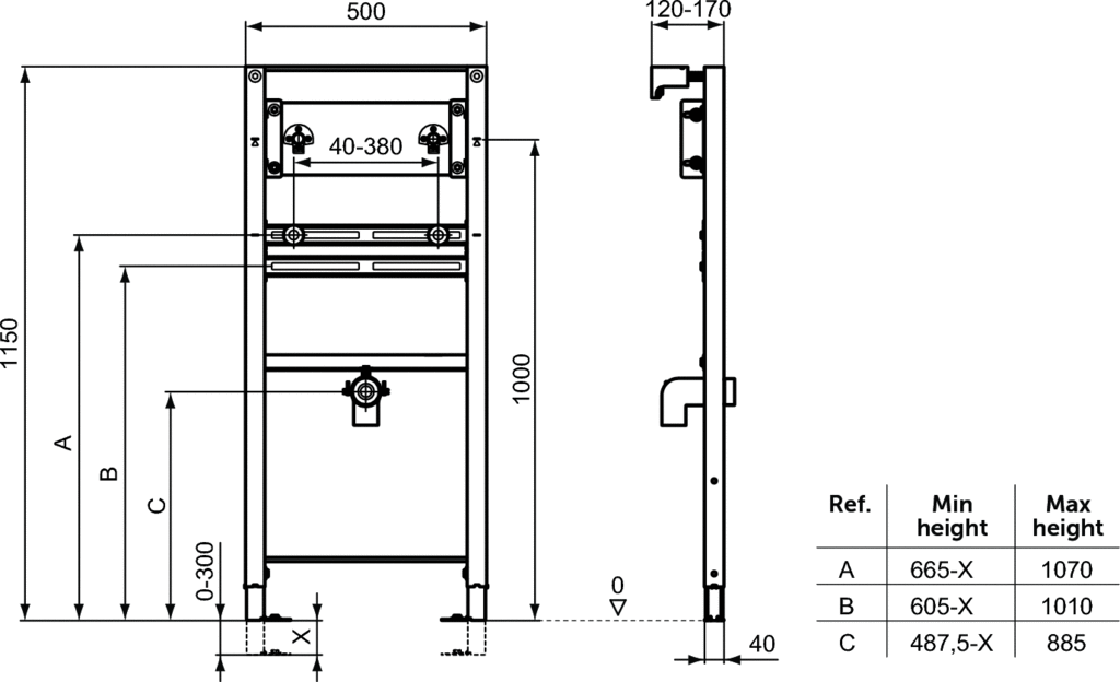
Do zastosowania z baterią ścienną. Instalacja: zabudowa podtynkowa z mocowaniem ściennym. Odporność na korozję i obciążenia do 150 kg. System montażu zapewniający szybką i łatwą instalację. Wsporniki z blokadą ułatwiającą montaż i regulacją wysokości w zakresie od 0 do 300 mm. Minimalna głębokość montażu 120 mm. Regulacja wysokości i rozstawu mocowania umywalki. Regulowana płyta do montażu baterii ściennej. Elementy w komplecie: Standardowy zestaw montażowy do umywalki. Kompletny zestaw montażowy, wraz ze wspornikami ściennymi. Kolano rury odpływu. Przyłacza kątowe do baterii G ½ - 2 szt.
- Kolekcja: ProSys
- Wysokość: 1150 mm
- Szerokość: 500 mm
- Głębokość: 170 mm
- Min. głębokość: 170 mm
- Mocowanie: Mocowanie do ściany i podłogi
- Instalacja: Sucha zabudowa, Lita zabudowa
- Materiał: Kompozyt
- Waga netto: 6.00 kg
- Sektor: Budownictwo mieszkaniowe, Hotelarstwo, Biuro, Opieka zdrowotna, Edukacja, Relaks
- Typ: ProSys™ Non-WC








