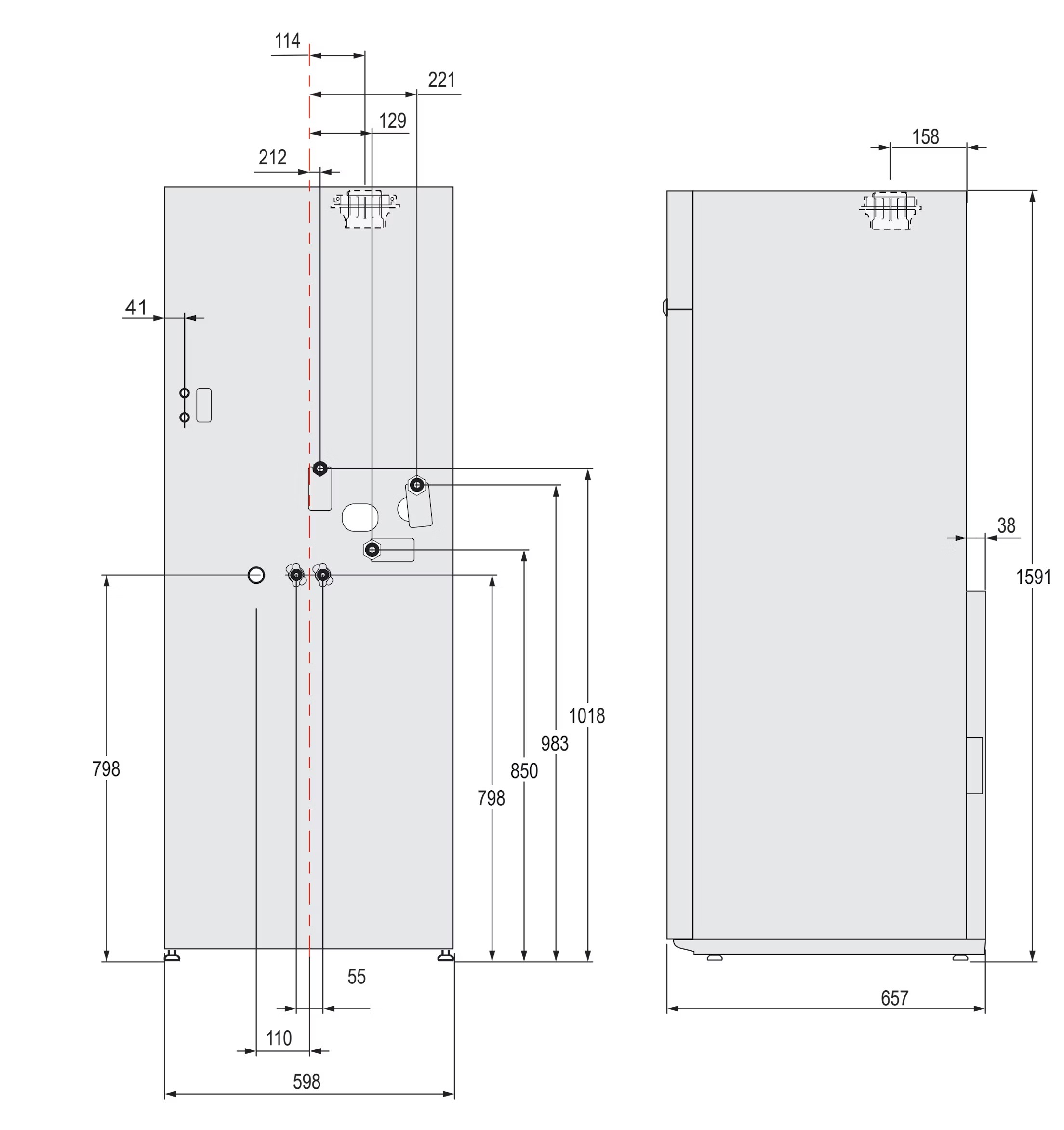
KURAMA EXCELLENCE 22/30 Kocioł c.o./c.w.u., 21,6 kW
Kod IK
05021818
Kod EAN
5400891218181
Kod producenta
021818
Marka
ACV
Model
KURAMA EXCELLENCE 22/30
Cena katalogowa netto
11 500 zł / szt.
Cena katalogowa brutto
14 145 zł / szt.
Dwufunkcyjny kocioł kondensacyjny KURAMA EXCELLENCE, wyprodukowany we Francji, o bardzo wysokiej wydajności i sprawności. Przy zastosowaniu czujnika temperatury zewnętrznej, kocioł automatycznie dopasowuje moc do aktualnego zapotrzebowania na ciepło. Zasobnik c.w.u. o pojemności 105 L zapewnia stały komfort ciepłej wody użytkowej. Kocioł KURAMA EXCELLENCE jest bardzo łatwy w obsłudze dzięki intuicyjnemu sterownikowi, który może współpracować z aplikacją Atlantic Cozytouch, przez smartfon lub tablet.
PROSTOTA
Produkt wyposażony w zestaw hydrauliczny
Kocioł kompaktowy: kocioł + kolano < 1,8 m do montażu w piwnicy
Łatwy serwis: drzwi na zawiasach, łatwe otwieranie
Dostęp do komponentów od przodu
KOMFORT
Przewidywanie wahań temperatury zewnętrznej dzięki czujnikowi zewnętrznemu
Ciepła woda dostępna przez cały czas: przepływ sanitarny 20 l/min
Zbiornik sanitarny 105 l
ŁĄCZNOŚĆ
Większa kontrola komfortu dzięki aplikacji Atlantic Cozytouch
Algorytm pracy sterownika ogranicza ilość załączeń palnika, co wpływa na większą ekonomię
Zdalne zarządzanie komfortem dzięki kompatybilności z aplikacją Delta Dore, Schneider Electric i Somfy
Dane logistyczne
Opakowanie zbiorcze 1
Jednostka zbiorcza opak.
paleta







